对于许多广东装修的业主而言,如何在有限的面积里兼顾颜值与实用是一大难题。本期分享的这套由轩怡家装在广州落地的107㎡住宅,便是一个完美答案。通过经典的轻法式设计语言,结合开放式布局与全屋定制,实现了“空间翻倍”的视觉效果,非常适合广州装修和广佛装修的业主参考。
项目信息
地点:广州
小区:合生中央城
户型:107㎡ 三房两厅
风格:轻法式风格


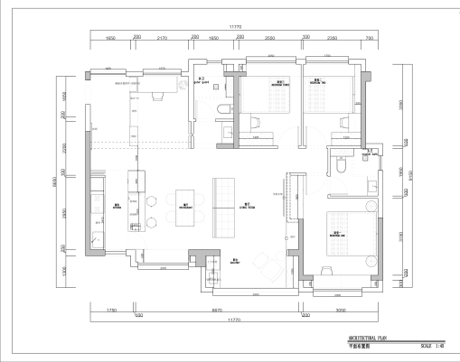
一、 开放式公共区:横厅+阳台,打造通透大宅感
本案的核心亮点在于对公共区域的重新规划。客厅、餐厅、厨房采用一体化设计,形成开阔的横厅格局,并将阳台纳入室内。
这种开放式布局不仅让自然采光遍布整个空间,视觉上也放大了面积,非常适合追求通透感的小户型装修。

轩怡家装在此处摈弃了传统电视墙,采用可移动电视,让客厅功能更加灵活多变。

二、 颜值与细节:经典法式元素,营造高级复古感
在风格塑造上,轻法式的优雅与复古的沉稳得到了完美平衡。

设计师运用了多个标志性元素:人字拼鱼骨木地板延伸视线,胡桃木与半墙牛油果绿的色彩碰撞,以及墙面精致的石膏线条与弧形造型。

这些细节柔化了空间的厚重感,注入浪漫气息,让家在高级中不失温馨,精准还原了业主对法式复古风的想象。
三、 全能收纳系统:全屋定制,解决收纳难题
再美的家也离不开收纳。通过全屋定制柜体,彻底解决了常见户型的收纳不足问题。

从入户的玄关柜,到嵌入阳台的家政柜,再到次卧的到顶桌柜一体设计,每一寸空间都被高效利用。
餐厅的飘窗也被改造为带抽屉的餐边台,大大提升了空间的实用性,真正做到了“好看又能装”。

四、 空间联动与分隔:玻璃移门与岛台,定义灵动空间
厨房与餐厅之间,一道黑框弧形玻璃移门成为点睛之笔。
它既保持了空间的通透感,又能有效隔绝油烟。同时,大理石岛台的设计兼具操作台与社交属性,成为厨房功能的延展。
这种“隔而不断”的设计手法,是轩怡家装对现代家居生活方式的深刻理解,非常适合应用于广佛装修的实践中。

业主反馈
业主表示:“轩怡家装不仅实现了我理想中的轻法式复古风,还让家里空间利用率大大提升。收纳井井有条,生活更舒适,非常推荐给准备广州装修或广佛装修的朋友们。”

网友回应